DACS Acoustics Portfolio

University of Chester, Creative Campus

Project Brief

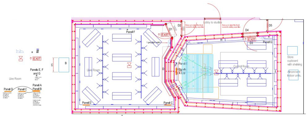
A lecture theatre on the first floor was to be split down the middle long ways by a corridor, with one half to remain as a lecture theatre, and the other half to provide a high-performance recording control room and live room. The control room needed to have the capacity for 30 students.

Storage space for amplifiers, guitars, cables, mic stands etc was an important element.

Recording was fairly guitar focussed so lighting had to be flexible but could not be controlled by dimmers due to pickup issues.

Visually the rooms should be exciting and stimulating, making students want to work in there.

The building was from the 1960s and the load that the floor could take was limited. The existing electricity supply was inadequate, and a new 3 phase distribution board was required. In addition, we provided input to the construction of the corridor walls, and new acoustic doors to the lecture theatre and studio lobby.

Communication between the rooms was via standard audio and network cables, as well as network cable connection to other spaces in the building.

Image
Construction and Project Management

To achieve the required isolation while remaining within the specified load boundaries meant that great care had to be taken with the design, layout, and construction.

The steels supporting the existing ceiling meant that the height within the studio rooms had to be considered carefully, and some unusual techniques were employed to ensure maximum internal height.

Image
Image
Project specifics

Space was limited, and accessibility was an issue as the studios were isolated from the existing floor so were raised. This was solved by providing a double ramp to the live and control room doors.

The doors were DACS acoustic doors (>40dB reduction with magnetic seals, weighing in at over 80kg), with each space having two doors to ensure good isolation. The doors were fully laminated with images of a mixer/engineers and a microphone/performer on the control and live rooms doors respectively.

After some consultation we decided on a red and black colour scheme complemented with birch ply trim.

Lighting was provided with multi circuit track lights to give a few levels of brightness, and LED strip accent lighting. Over the mix position we hung a custom ‘cloud’ with Philips Hue dimmable lighting. Overall control was kept straightforward.

Airconditioning and ventilation were provided via a low noise ducted system

Image
Image
Completion and feedback

The build was during the Covid lockdown so took a bit longer than originally expected. The University Project Manager was very pleased with the overall finish and attention to detail.

When the main user tried it out with his band, he said “the room made us sound awesome and the isolation to the control room was extreme”. Visually he said, “it was the thing that clinched it for most of the new students”.

Image
Image
Image
Specification

Control Room – RT60 around .4s with slight raise at 63Hz

Live Room – RT60 around .9s with slight rise at 63Hz

Isolation between Live and Control room 92dB

Isolation between external and live/control room 100dB

Isolation between control room/live room and corridor 87dB

Throughout Camira Fabrics Cara range was used, Pitlochry (bright red) and Black. All trim and chevrons were fireproofed Birch Ply

All DACS manufactured custom doors give isolation greater than 40dB

The lighting was LED spots in a multi circuit track allowing the lights to be deployed to provide different ‘vibes’ depending on the requirements. In addition, perimeter hidden LED strip was used as an accent feature.